Search

Leave a Message

Thank you for your message. We will be in touch with you shortly.

Explore Our Properties

Property Description

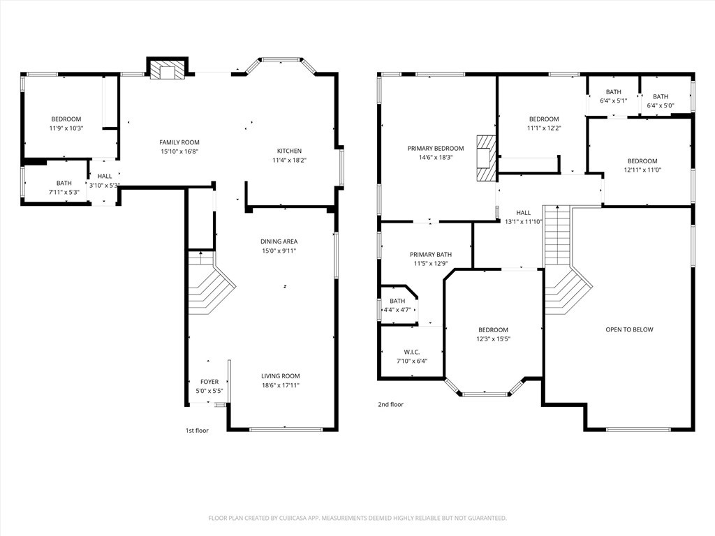
ETIWANDA SCHOOL DISTRICT! NO HOA! ONE BEDROOM DOWNSTAIRS! Rare opportunity to own a 2,369 sq ft home at the end of a quiet cul-de-sac, directly across from the elementary school--an ideal blend of comfort and convenience. Step into a light-filled living room with soaring ceilings and wood laminate flooring, flowing seamlessly into the formal dining area. The kitchen features granite countertops, a large island with 5-burner cooktop, and open access to the breakfast nook and inviting family room with fireplace. The main level also includes one bedroom and a full bathroom, offering excellent flexibility for guests or multi-generational living.
Upstairs, the primary suite offers its own fireplace and a spacious en-suite with dual sinks, walk-in closet, soaking tub, and separate shower. Two additional bedrooms share a Jack-and-Jill bathroom. The oversized bonus room with mountain views is a true highlight--perfect for a game room, media space, home office, or potential 5th bedroom.
Enjoy a low-maintenance backyard with an Alumawood covered patio, ideal for relaxing or entertaining. Additional upgrades include a tankless water heater and exterior security system.
Located in the highly rated Etiwanda School District, close from parks, trails, shopping, and Victoria Gardens, with easy commuter access. No HOA. Homes in this location rarely come up--schedule your private showing today!

Overview

Open House
5/2/2026 1:00PM - 3:00PM PDT
5/9/2026 1:00PM - 3:00PM PDT
Property Status
For Sale
Lot Size
3,900 Sq.Ft.
MLS ID
WS26080738
Property Type
Residential
Year Built
1992

Features & Amenities

Architecture Styles
Contemporary
View Description
Mountain(s)
Stories
2
Garage Spaces
2.0
Water Source
Public
Pool
None
Lot Features
Cul-De-Sac, Street Level
Parking
Garage
Heat Type
Central
Air Conditioning
Central Air
Laundry Room
In Garage
Fireplace
Family Room, Primary Bedroom
Appliances
Dishwasher, Gas Oven, Gas Range, Microwave
Other Interior Features
Breakfast Area, Ceiling Fan(s), Cathedral Ceiling(s), Separate/Formal Dining Room, Granite Counters, Open Floorplan, Bedroom on Main Level, Jack and Jill Bath, Primary Suite
Sewer
Public Sewer
Security Features
Security System, Carbon Monoxide Detector(s)
Elementary School
Terra Vista
Middle School
Etiwanda
High School
Rancho Cucamonga
School District
Chaffey Joint Union High
Sales Price
$876,000

Downloads

11599 Barrett

Schedule a Tour

We would love to help you see this beautiful home! As a full-service brokerage, we can help you tour. Please submit an offer, and answer questions about the buying process.

Thank you

for your interest in 11599 Barrett, Rancho Cucamonga, CA 91730

11599 Barrett
Navigate

Mortgage Calculator

Estimate your monthly mortgage payment, including the principal and interest, property taxes, and HOA. Adjust the values to generate a more accurate rate.
$0,000 Your Payment 20 15 65
$0,000 Your Payment

I'm Interested In

11599 Barrett

or Contact

Exclusive Listings

Our Properties

  • 22442 Via Pajaro For Sale

    $15,000,000

    22442 Via Pajaro

    22442 Via Pajaro, Coto de Caza, CA 92679

    • 6 Beds
    • 8 Baths
    • 15,000 Sq.Ft.
  • 1836 Sichel 27 For Sale

    $14,990,000

    1836 Sichel 27

    1836 Sichel 27, Los Angeles, CA 90031

    • 35,511 Sq.Ft.
  • 100 Boulder Pass For Sale

    $8,950,000

    100 Boulder Pass

    100 Boulder Pass, Irvine, CA 92602

    • 5 Beds
    • 6 Baths
    • 5,532 Sq.Ft.
  • 64 Laurel Drive For Sale

    $8,800,000

    64 Laurel Drive

    64 Laurel Drive, Rancho Palos Verdes, CA 90275

    • 6 Beds
    • 10 Baths
    • 8,313 Sq.Ft.
  • 81 Hacienda Drive For Sale

    $7,980,000

    81 Hacienda Drive

    81 Hacienda Drive, Arcadia, CA 91006

    • 6 Beds
    • 8 Baths
    • 8,578 Sq.Ft.
  • 330 Arbolada Drive For Sale

    $7,300,000

    330 Arbolada Drive

    330 Arbolada Drive, Arcadia, CA 91006

    • 8 Beds
    • 10 Baths
    • 9,900 Sq.Ft.
  • 900 W Olympic Boulevard 50A For Sale

    $6,380,000

    900 W Olympic Boulevard 50A

    900 W Olympic Boulevard 50A, Los Angeles, CA 90015

    • 3 Beds
    • 4 Baths
    • 3,510 Sq.Ft.
  • 1486 Wembley Road For Sale

    $5,388,800

    1486 Wembley Road

    1486 Wembley Road, San Marino, CA 91108

    • 4 Beds
    • 5 Baths
    • 4,267 Sq.Ft.
  • 625 E Norman For Sale

    $4,980,000

    625 E Norman

    625 E Norman, Arcadia, CA 91006

    • 7 Beds
    • 8 Baths
    • 6,759 Sq.Ft.
  • 114 Interstellar For Sale

    $4,780,000

    114 Interstellar

    114 Interstellar, Irvine, CA 92618

    • 5 Beds
    • 6 Baths
    • 4,948 Sq.Ft.
  • 9 Rocky Mountain For Sale

    $4,750,000

    9 Rocky Mountain

    9 Rocky Mountain, Coto de Caza, CA 92679

    • 5 Beds
    • 6 Baths
    • 5,854 Sq.Ft.
  • 1837 Stonehouse Road For Sale

    $4,680,000

    1837 Stonehouse Road

    1837 Stonehouse Road, Arcadia, CA 91006

    • 4 Beds
    • 5 Baths
    • 5,741 Sq.Ft.
  • 481 W Live Oak Avenue For Sale

    $4,580,000

    481 W Live Oak Avenue

    481 W Live Oak Avenue, Arcadia, CA 91007

    • 6 Beds
    • 8 Baths
    • 8,108 Sq.Ft.
  • 127 Oakstone For Sale

    $4,580,000

    127 Oakstone

    127 Oakstone, Irvine, CA 92618

    • 4 Beds
    • 5 Baths
    • 3,220 Sq.Ft.
  • 67 Kite For Sale

    $4,500,000

    67 Kite

    67 Kite, Irvine, CA 92618

    • 5 Beds
    • 6 Baths
    • 4,716 Sq.Ft.
  • 46 Shadybend For Sale

    $4,200,000

    46 Shadybend

    46 Shadybend, Irvine, CA 92602

    • 4 Beds
    • 5 Baths
    • 4,200 Sq.Ft.
  • 823 S Bundy Drive 110 For Sale

    $3,999,000

    823 S Bundy Drive 110

    823 S Bundy Drive 110, Los Angeles, CA 90049

    • 4 Beds
    • 5 Baths
    • 3,850 Sq.Ft.
  • 53 Thrasher For Sale

    $3,850,000

    53 Thrasher

    53 Thrasher, Irvine, CA 92618

    • 5 Beds
    • 6 Baths
    • 4,427 Sq.Ft.
  • 16935 Esquira Pl For Sale

    $3,698,000

    16935 Esquira Pl

    16935 Esquira Pl, Encino, CA 91436

    • 5 Beds
    • 5 Baths
    • 3,775 Sq.Ft.
  • 737 N Cherokee Avenue For Sale

    $3,685,000

    737 N Cherokee Avenue

    737 N Cherokee Avenue, Los Angeles, CA 90038

    • 5 Beds
    • 6 Baths
    • 4,116 Sq.Ft.
  • 72 Ray For Sale

    $3,680,000

    72 Ray

    72 Ray, Irvine, CA 92618

    • 4 Beds
    • 6 Baths
    • 4,238 Sq.Ft.
  • 5502 Heritage Oak For Sale

    $3,600,000

    5502 Heritage Oak

    5502 Heritage Oak, Trabuco Canyon, CA 92679

    • 5 Beds
    • 5 Baths
    • 5,200 Sq.Ft.
  • 105 Shear For Sale

    $3,580,000

    105 Shear

    105 Shear, Irvine, CA 92618

    • 5 Beds
    • 8 Baths
    • 4,512 Sq.Ft.
  • 2412 Jupiter For Sale

    $3,290,000

    2412 Jupiter

    2412 Jupiter, Los Angeles, CA 90046

    • 6 Beds
    • 5 Baths
    • 3,591 Sq.Ft.
  • 225 N Lima For Sale

    $3,200,000

    225 N Lima

    225 N Lima, Sierra Madre, CA 91024

    • 10 Beds
    • 11 Baths
    • 10,000 Sq.Ft.
  • 73 Cartwheel For Sale

    $3,120,000

    73 Cartwheel

    73 Cartwheel, Irvine, CA 92618

    • 4 Beds
    • 5 Baths
    • 3,715 Sq.Ft.
  • 2282 Canyonback For Sale

    $3,090,000

    2282 Canyonback

    2282 Canyonback, Los Angeles, CA 90049

    • 4 Beds
    • 5 Baths
    • 4,558 Sq.Ft.
  • 2001 Gardi For Sale

    $3,080,000

    2001 Gardi

    2001 Gardi, Bradbury, CA 91008

    • 6 Beds
    • 2 Baths
    • 2,648 Sq.Ft.
  • 10 Avenue De Azalea For Sale

    $2,890,000

    10 Avenue De Azalea

    10 Avenue De Azalea, Rancho Palos Verdes, CA 90275

    • 4 Beds
    • 4 Baths
    • 4,153 Sq.Ft.
  • 4512 Robinwood For Sale

    $2,886,000

    4512 Robinwood

    4512 Robinwood, Irvine, CA 92604

    • 5 Beds
    • 5 Baths
    • 3,076 Sq.Ft.
  • 90 Rockinghorse For Sale

    $2,850,000

    90 Rockinghorse

    90 Rockinghorse, Irvine, CA 92602

    • 4 Beds
    • 5 Baths
    • 2,937 Sq.Ft.
  • 81 Pelican Lane For Sale

    $2,850,000

    81 Pelican Lane

    81 Pelican Lane, Irvine, CA 92618

    • 4 Beds
    • 5 Baths
    • 3,466 Sq.Ft.
  • 19679 Highland Terrace For Sale

    $2,848,000

    19679 Highland Terrace

    19679 Highland Terrace, Walnut, CA 91789

    • 4 Beds
    • 5 Baths
    • 4,298 Sq.Ft.
  • 18345 Watson Way For Sale

    $2,806,666

    18345 Watson Way

    18345 Watson Way, Yorba Linda, CA 92886

    • 5 Beds
    • 5 Baths
    • 5,011 Sq.Ft.
  • 22241 Birchleaf For Sale

    $2,780,000

    22241 Birchleaf

    22241 Birchleaf, Mission Viejo, CA 92692

    • 5 Beds
    • 5 Baths
    • 3,520 Sq.Ft.
  • 162 Winnett For Sale

    $2,600,000

    162 Winnett

    162 Winnett, Irvine, CA 92602

    • 3 Beds
    • 3 Baths
    • 1,921 Sq.Ft.
  • 8 Healdsbury For Sale

    $2,580,000

    8 Healdsbury

    8 Healdsbury, Irvine, CA 92602

    • 4 Beds
    • 3 Baths
    • 3,318 Sq.Ft.
  • 313 Terrapin For Sale

    $2,580,000

    313 Terrapin

    313 Terrapin, Irvine, CA 92618

    • 5 Beds
    • 4 Baths
    • 2,734 Sq.Ft.
  • 719 Venice Boulevard For Sale

    $2,479,999

    719 Venice Boulevard

    719 Venice Boulevard, Venice, CA 90291

    • 3 Beds
    • 3 Baths
    • 2,490 Sq.Ft.
  • 166 Villa Ridge For Sale

    $2,450,000

    166 Villa Ridge

    166 Villa Ridge, Irvine, CA 92602

    • 4 Beds
    • 3 Baths
    • 2,227 Sq.Ft.
  • 900 Euclid Ave For Sale

    $2,400,000

    900 Euclid Ave

    900 Euclid Ave, San Gabriel, CA 91776

    • 4 Beds
    • 5 Baths
    • 2,949 Sq.Ft.
  • 306 Treble For Sale

    $2,380,000

    306 Treble

    306 Treble, Irvine, CA 92618

    • 4 Beds
    • 4 Baths
    • 2,955 Sq.Ft.
  • 5300 Huntington S For Sale

    $2,350,000

    5300 Huntington S

    5300 Huntington S, Los Angeles, CA 90032

    • 6,738 Sq.Ft.
  • 117 Donati For Sale

    $2,335,000

    117 Donati

    117 Donati, Irvine, CA 92602

    • 4 Beds
    • 3 Baths
    • 2,382 Sq.Ft.
  • 149 Great Park Blvd For Sale

    $2,280,000

    149 Great Park Blvd

    149 Great Park Blvd, Irvine, CA 92618

    • 4 Beds
    • 3 Baths
    • 2,450 Sq.Ft.
  • 228 N Orange For Sale

    $2,200,000

    228 N Orange

    228 N Orange, Rialto, CA 92376

    • 6,240 Sq.Ft.
  • 17 Blazing Star For Sale

    $2,180,000

    17 Blazing Star

    17 Blazing Star, Irvine, CA 92604

    • 4 Beds
    • 3 Baths
    • 2,591 Sq.Ft.
  • 716 S Chapel Avenue For Sale

    $2,160,000

    716 S Chapel Avenue

    716 S Chapel Avenue, Alhambra, CA 91801

    • 5,394 Sq.Ft.
  • 15930 Esquilime For Sale

    $2,090,000

    15930 Esquilime

    15930 Esquilime, Chino Hills, CA 91709

    • 6 Beds
    • 6 Baths
    • 5,557 Sq.Ft.
  • 54 Painted Cameo For Sale

    $2,080,000

    54 Painted Cameo

    54 Painted Cameo, Irvine, CA 92602

    • 4 Beds
    • 3 Baths
    • 2,059 Sq.Ft.
View All