Search

Leave a Message

Thank you for your message. We will be in touch with you shortly.

Explore Our Properties

Property Description

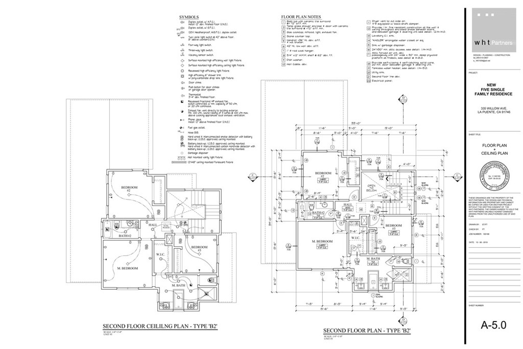
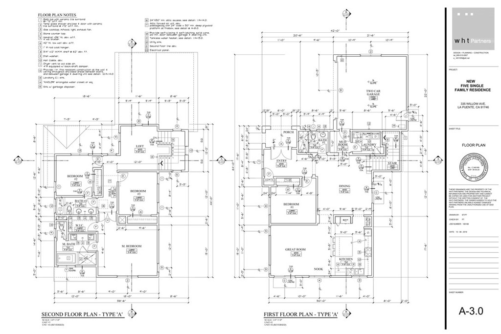
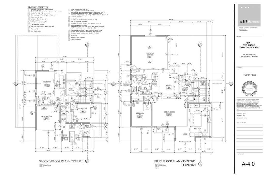
Location ! Location ! Location ! Rare building opportunity for up to 15 separate residences in the San Gabriel Valley. Perfect for Contractors, Builder Development and Investors. The front house is three bedrooms and two bathrooms, and the back house is two bedrooms and one bathroom. The large lot is approximately 0.95 acres,, 41,444 square feet. It was previously approved for 5 individual parcels. It's is conveniently located north of a large church property and west of a vocational school on the border of the City of Industry. The property may be an ideal location for creative planning such as home health care, congregal living or other use depending on city approval. The original plans are still valid as the building code has not changed since they were approved. Preliminary discussions with La Puente City planners indicates the property is now eligible for up to fifteen separate residences in the form of five single-family homes (SFR), five junior additional dwelling units (JADU), and five additional dwelling units (ADU). Prefabricated modular materials and traditional construction products may be approved by the city.

The price includes previous all previous architectural blue prints, Floor plan, Site plan, Building Elevations The plan included the division of 5 single individual home as follow: Unit #1 Lot-6825 sq ft, 2200 sq ft home, 4 bedrooms, 2.5 Baths, Dining room, Great room, Laundry room. Unit #2- Lot-6993 sq ft, 2468 sq ft, 4 Bedrooms, 2.5 baths, Dining room, Great room, Loft, Laundry room. Unit #3- Lot-6828 sq ft, 2200 sq ft, 4 bedrooms, 2.5 baths, Dining room, Great room, Laundry room. Unit #4- Lot 6502 sq ft, 4 Bedrooms, 2.5 baths, Great room, Dining room, Loft, Laundry room. Unit #5 Lot-6260 sq ft, 2236 sq ft, 4 bedrooms, 2.5 Baths, Dining room, Great room, Laundry room. All unit is 2 story with a 2 car garage, 1 bedroom downstairs.
Drive by only.

Overview

Property Status
Sold
Lot Size
0.95 Acres
MLS ID
AR23215329
Property Type
Multi-Family
Year Built
1951

Features & Amenities

View Description
None
Stories
1
Garage Spaces
2.0
Water Source
Public
Pool
None
Lot Features
2-5 Units/Acre, Lot Over 40000 Sqft
Air Conditioning
Central Air
Other Interior Features
All Bedrooms Down
Sewer
Public Sewer
School District
Bassett Unified
Sales Price
$1,450,000
Zoning
LPR1*

Downloads

335 Willow Avenue

Schedule a Tour

We would love to help you see this beautiful home! As a full-service brokerage, we can help you tour. Please submit an offer, and answer questions about the buying process.

Enter a valid email

Thank you

for your interest in 335 Willow Avenue, La Puente, CA 91746

back to page
335 Willow Avenue
Navigate

I'm Interested In

335 Willow Avenue

or
  • CallPeter (Zhongliang) Ma

    License #02052167

    (424) 567-2888
  • Exclusive Listings

    Our Properties

    • 22442 Via Pajaro For Sale

      $15,000,000

      22442 Via Pajaro

      22442 Via Pajaro, Coto de Caza, CA 92679

      • 6 Beds
      • 8 Baths
      • 15,000 Sq.Ft.
    • 64 Laurel Drive For Sale

      $8,800,000

      64 Laurel Drive

      64 Laurel Drive, Rancho Palos Verdes, CA 90275

      • 6 Beds
      • 10 Baths
      • 8,313 Sq.Ft.
    • 53 Marguerite Drive For Sale

      $8,750,000

      53 Marguerite Drive

      53 Marguerite Drive, Rancho Palos Verdes, CA 90275

      • 7 Beds
      • 9 Baths
      • 8,055 Sq.Ft.
    • 81 Hacienda For Sale

      $8,670,000

      81 Hacienda

      81 Hacienda, Arcadia, CA 91006

      • 6 Beds
      • 8 Baths
      • 7,886 Sq.Ft.
    • 330 Arbolada Drive For Sale

      $7,990,000

      330 Arbolada Drive

      330 Arbolada Drive, Arcadia, CA 91006

      • 8 Beds
      • 10 Baths
      • 9,900 Sq.Ft.
    • 3355 Alta Laguna Boulevard For Sale

      $6,800,000

      3355 Alta Laguna Boulevard

      3355 Alta Laguna Boulevard, Laguna Beach, CA 92651

      • 5 Beds
      • 6 Baths
      • 4,700 Sq.Ft.
    • 100 Bellatrix For Sale

      $5,800,000

      100 Bellatrix

      100 Bellatrix, Irvine, CA 92618

      • 5 Beds
      • 6 Baths
      • 5,140 Sq.Ft.
    • 1327 S 2nd Avenue For Sale

      $5,280,000

      1327 S 2nd Avenue

      1327 S 2nd Avenue, Arcadia, CA 91006

      • 6 Beds
      • 7 Baths
      • 8,667 Sq.Ft.
    • 1416 Wilson Avenue For Sale

      $5,198,000

      1416 Wilson Avenue

      1416 Wilson Avenue, San Marino, CA 91108

      • 5 Beds
      • 5 Baths
      • 5,209 Sq.Ft.
    • 61 Dorado For Sale

      $4,998,000

      61 Dorado

      61 Dorado, Irvine, CA 92618

      • 4 Beds
      • 6 Baths
      • 5,046 Sq.Ft.
    • 127 Oakstone For Sale

      $4,580,000

      127 Oakstone

      127 Oakstone, Irvine, CA 92618

      • 4 Beds
      • 5 Baths
      • 3,220 Sq.Ft.
    • 53 Thrasher For Sale

      $4,080,000

      53 Thrasher

      53 Thrasher, Irvine, CA 92618

      • 5 Beds
      • 6 Baths
      • 4,427 Sq.Ft.
    • 312 E Camino Real Avenue For Sale

      $3,800,000

      312 E Camino Real Avenue

      312 E Camino Real Avenue, Arcadia, CA 91006

      • 5 Beds
      • 7 Baths
      • 6,062 Sq.Ft.
    • 202 W Lemon Avenue For Sale

      $3,788,000

      202 W Lemon Avenue

      202 W Lemon Avenue, Arcadia, CA 91007

      • 7 Beds
      • 7 Baths
      • 5,796 Sq.Ft.
    • 737 N Cherokee Avenue For Sale

      $3,685,000

      737 N Cherokee Avenue

      737 N Cherokee Avenue, Los Angeles, CA 90038

      • 5 Beds
      • 6 Baths
      • 4,116 Sq.Ft.
    • 27170 Big Horn Mountain Way For Sale

      $3,498,800

      27170 Big Horn Mountain Way

      27170 Big Horn Mountain Way, Yorba Linda, CA 92887

      • 5 Beds
      • 5 Baths
      • 4,625 Sq.Ft.
    • 76 Bolide For Sale

      $3,450,000

      76 Bolide

      76 Bolide, Irvine, CA 92618

      • 4 Beds
      • 5 Baths
      • 3,715 Sq.Ft.
    • 59 Longchamp For Sale

      $3,380,000

      59 Longchamp

      59 Longchamp, Irvine, CA 92602

      • 4 Beds
      • 4 Baths
      • 3,267 Sq.Ft.
    • 1701 Virginia Road For Sale

      $3,300,000

      1701 Virginia Road

      1701 Virginia Road, San Marino, CA 91108

      • 5 Beds
      • 4 Baths
      • 2,743 Sq.Ft.
    • 2653 Cordelia Road For Sale

      $3,295,000

      2653 Cordelia Road

      2653 Cordelia Road, Los Angeles, CA 90049

      • 4 Beds
      • 3 Baths
      • 2,851 Sq.Ft.
    • 2677 Wagon Train Lane For Sale

      $3,200,000

      2677 Wagon Train Lane

      2677 Wagon Train Lane, Diamond Bar, CA 91765

      • 6 Beds
      • 10 Baths
      • 6,013 Sq.Ft.
    • 110 Pixel For Sale

      $3,199,999

      110 Pixel

      110 Pixel, Irvine, CA 92618

      • 4 Beds
      • 5 Baths
      • 3,754 Sq.Ft.
    • 126 Paxton For Sale

      $3,160,000

      126 Paxton

      126 Paxton, Irvine, CA 92620

      • 5 Beds
      • 5 Baths
      • 3,548 Sq.Ft.
    • 3277 Barhite Street For Sale

      $3,080,000

      3277 Barhite Street

      3277 Barhite Street, Pasadena, CA 91107

      • 4 Beds
      • 4 Baths
      • 4,311 Sq.Ft.
    • 70 Weston For Sale

      $2,980,000

      70 Weston

      70 Weston, Irvine, CA 92620

      • 4 Beds
      • 4 Baths
      • 3,084 Sq.Ft.
    • 101 Tinker For Sale

      $2,895,000

      101 Tinker

      101 Tinker, Irvine, CA 92618

      • 5 Beds
      • 6 Baths
      • 3,250 Sq.Ft.
    • 19 Easthill For Sale

      $2,890,000

      19 Easthill

      19 Easthill, Coto de Caza, CA 92679

      • 5 Beds
      • 5 Baths
      • 3,708 Sq.Ft.
    • 4 San Pietro For Sale

      $2,890,000

      4 San Pietro

      4 San Pietro, Newport Coast, CA 92657

      • 4 Beds
      • 4 Baths
      • 2,400 Sq.Ft.
    • 51 Thoroughbred For Sale

      $2,750,000

      51 Thoroughbred

      51 Thoroughbred, Irvine, CA 92602

      • 4 Beds
      • 3 Baths
      • 2,709 Sq.Ft.
    • 306 Treble For Sale

      $2,680,000

      306 Treble

      306 Treble, Irvine, CA 92618

      • 4 Beds
      • 4 Baths
      • 2,955 Sq.Ft.
    • 20455 Somma Drive For Sale

      $2,680,000

      20455 Somma Drive

      20455 Somma Drive, Perris, CA 92570

      • 10 Beds
      • 8 Baths
      • 10,238 Sq.Ft.
    • 900 Euclid Ave For Sale

      $2,600,000

      900 Euclid Ave

      900 Euclid Ave, San Gabriel, CA 91776

      • 4 Beds
      • 5 Baths
      • 2,949 Sq.Ft.
    • 19668 Three Oaks lane For Sale

      $2,588,000

      19668 Three Oaks lane

      19668 Three Oaks lane, Walnut, CA 91789

      • 4 Beds
      • 5 Baths
      • 4,571 Sq.Ft.
    • 5 Via Taliana For Sale

      $2,588,000

      5 Via Taliana

      5 Via Taliana, Rancho Santa Margarita, CA 92688

      • 5 Beds
      • 3 Baths
      • 3,418 Sq.Ft.
    • 21620 Brisbane Way For Sale

      $2,580,000

      21620 Brisbane Way

      21620 Brisbane Way, Yorba Linda, CA 92887

      • 5 Beds
      • 4 Baths
      • 3,759 Sq.Ft.
    • 242 W Jackson Street For Sale

      $2,560,000

      242 W Jackson Street

      242 W Jackson Street, Rialto, CA 92376

      • 9,800 Sq.Ft.
    • 149 Great Park Blvd For Sale

      $2,480,000

      149 Great Park Blvd

      149 Great Park Blvd, Irvine, CA 92618

      • 4 Beds
      • 3 Baths
      • 2,450 Sq.Ft.
    • 1420 Linda Way For Sale

      $2,450,000

      1420 Linda Way

      1420 Linda Way, Arcadia, CA 91006

      • 5 Beds
      • 3 Baths
      • 3,057 Sq.Ft.
    • 119 Pastel For Sale

      $2,400,000

      119 Pastel

      119 Pastel, Irvine, CA 92618

      • 4 Beds
      • 6 Baths
      • 3,493 Sq.Ft.
    • 2380 Scenic Ridge Dr For Sale

      $2,399,000

      2380 Scenic Ridge Dr

      2380 Scenic Ridge Dr, Chino Hills, CA 91709

      • 5 Beds
      • 5 Baths
      • 3,050 Sq.Ft.
    • 73 Bloomington For Sale

      $2,399,000

      73 Bloomington

      73 Bloomington, Irvine, CA 92620

      • 4 Beds
      • 4 Baths
      • 2,802 Sq.Ft.
    • 119 cordial For Sale

      $2,390,000

      119 cordial

      119 cordial, Irvine, CA 92620

      • 4 Beds
      • 3 Baths
      • 2,683 Sq.Ft.
    • 2536 Cotner Ave For Sale

      $2,390,000

      2536 Cotner Ave

      2536 Cotner Ave, Los Angeles, CA 90064

      • 4 Beds
      • 5 Baths
      • 2,319 Sq.Ft.
    • 185 W Palm Drive For Sale

      $2,350,000

      185 W Palm Drive

      185 W Palm Drive, Arcadia, CA 91007

      • 4 Beds
      • 5 Baths
      • 3,105 Sq.Ft.
    • 103 Spotted Quail For Sale

      $2,350,000

      103 Spotted Quail

      103 Spotted Quail, Irvine, CA 92618

      • 3 Beds
      • 3 Baths
      • 2,185 Sq.Ft.
    • 700 Alabama Street For Sale

      $2,298,000

      700 Alabama Street

      700 Alabama Street, San Gabriel, CA 91775

      • 5 Beds
      • 4 Baths
      • 2,825 Sq.Ft.
    • 112 Turning Post For Sale

      $2,200,000

      112 Turning Post

      112 Turning Post, Irvine, CA 92620

      • 4 Beds
      • 3 Baths
      • 2,486 Sq.Ft.
    • 21721 Rushford Drive For Sale

      $2,200,000

      21721 Rushford Drive

      21721 Rushford Drive, Lake Forest, CA 92630

      • 4 Beds
      • 4 Baths
      • 3,021 Sq.Ft.
    • 159 N San Marino Avenue For Sale

      $2,150,000

      159 N San Marino Avenue

      159 N San Marino Avenue, San Gabriel, CA 91775

      • 5 Beds
      • 5 Baths
      • 3,391 Sq.Ft.
    • 220 Lexford For Sale

      $2,100,000

      220 Lexford

      220 Lexford, Irvine, CA 92618

      • 5 Beds
      • 4 Baths
      • 3,281 Sq.Ft.
    View All