Search

Leave a Message

Thank you for your message. We will be in touch with you shortly.

Explore Our Properties

Property Description

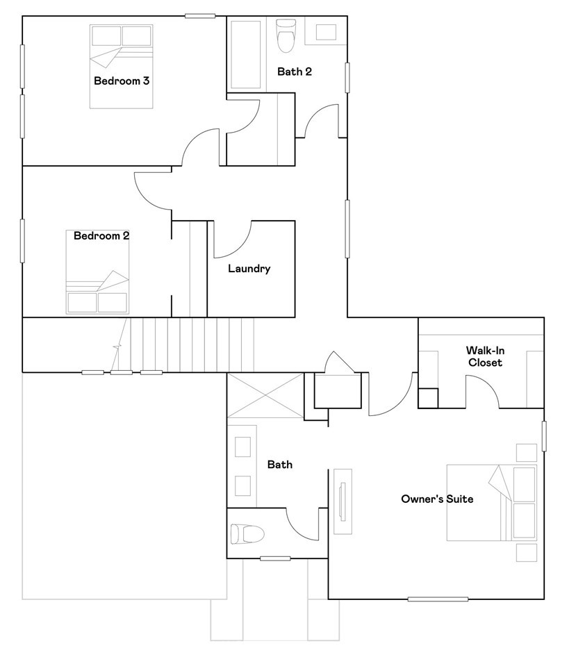
NEW CONSTRUCTION! The first level of this two-story home is host to a spacious open floorplan shared between the Great Room, kitchen and dining room. A sliding glass door leads to the outdoor space. All three bedrooms are located upstairs, including the generous owner's suite which features a restful bedroom, an en-suite bathroom and a walk-in closet.

Whispering Wind is a collection of new single-family homes for sale at the Country Lane masterplan in Ontario, CA. Residents enjoy a host of onsite amenities, including a recreation center, swimming pool, spa and an HOA-maintained park. Country Lane is conveniently located just moments from local schools in the Mountain View School District and popular shopping centers including Ontario Mills and Victoria Gardens.

Overview

Property Status
Sold
Lot Size
3,136 Sq.Ft.
MLS ID
SW23142240
Property Type
Residential
Year Built
2023

Features & Amenities

Neighborhood
Ontario
View Description
None
Stories
2
Garage Spaces
2.0
Water Source
Public
Utilites
Cable Connected, Electricity Connected, Natural Gas Connected, Phone Connected, Sewer Connected, Underground Utilities, Water Connected
Pool
In Ground, Association
Roof
Tile
Lot Features
Drip Irrigation/Bubblers, Front Yard, Level, Sprinkler System
Parking
Direct Access, Garage
Heat Type
Central
Air Conditioning
Central Air
Laundry Room
Inside, Laundry Room, Upper Level
Fireplace
None
Appliances
Built-In Range, Dishwasher, Disposal, Microwave
Other Interior Features
Open Floorplan, Quartz Counters, Recessed Lighting, All Bedrooms Up, Walk-In Closet(s)
Sewer
Public Sewer
Substructure
Slab
HOA Amenities
Playground, Pool, Spa/Hot Tub
Security Features
Carbon Monoxide Detector(s), Smoke Detector(s)
Green Feature
Solar
School District
Mountain View
Sales Price
$624,250
HOA
$228/mo

Downloads

3662 S Basanite Avenue

Schedule a Tour

We would love to help you see this beautiful home! As a full-service brokerage, we can help you tour. Please submit an offer, and answer questions about the buying process.

Thank you

for your interest in 3662 S Basanite Avenue, Ontario, CA 91762

3662 S Basanite Avenue
Navigate
Ontario

Explore Ontario

read more

I'm Interested In

3662 S Basanite Avenue

or
  • CallStanley Sui

    License #2100440

    (626) 899-6622
  • Exclusive Listings

    Our Properties

    • 2530 E Penelope For Sale

      $1,050,000

      2530 E Penelope

      2530 E Penelope, Ontario, CA 91762

      • 5 Beds
      • 5 Baths
      • 3,436 Sq.Ft.
    • 2622 E Embry Lane For Sale

      $1,049,999

      2622 E Embry Lane

      2622 E Embry Lane, Ontario, CA 91762

      • 5 Beds
      • 4 Baths
      • 2,947 Sq.Ft.
    • 2687 E Harlow Lane For Sale

      $949,000

      2687 E Harlow Lane

      2687 E Harlow Lane, Ontario, CA 91762

      • 5 Beds
      • 4 Baths
      • 2,947 Sq.Ft.
    • 818 W Bonnie Brae Court For Sale

      $948,000

      818 W Bonnie Brae Court

      818 W Bonnie Brae Court, Ontario, CA 91762

      • 4 Beds
      • 3 Baths
      • 2,196 Sq.Ft.
    • 4125 E La Jolla Street For Sale

      $829,900

      4125 E La Jolla Street

      4125 E La Jolla Street, Ontario, CA 91761

      • 4 Beds
      • 3 Baths
      • 2,308 Sq.Ft.
    • 4824 S Apricot Way For Sale

      $828,000

      4824 S Apricot Way

      4824 S Apricot Way, Ontario, CA 91762

      • 5 Beds
      • 3 Baths
      • 2,441 Sq.Ft.
    • 4858 S Avocado Trail For Sale

      $828,000

      4858 S Avocado Trail

      4858 S Avocado Trail, Ontario, CA 91762

      • 4 Beds
      • 3 Baths
      • 2,441 Sq.Ft.
    • 3410 E Foxglove Way For Sale

      $790,000

      3410 E Foxglove Way

      3410 E Foxglove Way, Ontario, CA 91761

      • 3 Beds
      • 2 Baths
      • 1,768 Sq.Ft.
    • 3918 E E Cambria Privado For Sale

      $788,000

      3918 E E Cambria Privado

      3918 E E Cambria Privado, Ontario, CA 91761

      • 4 Beds
      • 3 Baths
      • 2,308 Sq.Ft.
    • 437 N Begonia For Sale

      $695,000

      437 N Begonia

      437 N Begonia, Ontario, CA 91762

      • 3 Beds
      • 2 Baths
      • 1,500 Sq.Ft.
    • 4451 S Bryant Paseo For Sale

      $599,000

      4451 S Bryant Paseo

      4451 S Bryant Paseo, Ontario, CA 91762

      • 3 Beds
      • 3 Baths
      • 1,475 Sq.Ft.
    • 1230 S Cypress For Sale

      $508,000

      1230 S Cypress

      1230 S Cypress, Ontario, CA 91762

      • 3 Beds
      • 3 Baths
      • 1,512 Sq.Ft.
    • 22442 Via Pajaro For Sale

      $15,000,000

      22442 Via Pajaro

      22442 Via Pajaro, Coto de Caza, CA 92679

      • 6 Beds
      • 8 Baths
      • 15,000 Sq.Ft.
    • 1836 Sichel 27 For Sale

      $14,990,000

      1836 Sichel 27

      1836 Sichel 27, Los Angeles, CA 90031

      • 35,511 Sq.Ft.
    • 100 Boulder Pass For Sale

      $8,950,000

      100 Boulder Pass

      100 Boulder Pass, Irvine, CA 92602

      • 5 Beds
      • 6 Baths
      • 5,532 Sq.Ft.
    • 81 Hacienda Drive For Sale

      $7,980,000

      81 Hacienda Drive

      81 Hacienda Drive, Arcadia, CA 91006

      • 6 Beds
      • 8 Baths
      • 8,578 Sq.Ft.
    • 330 Arbolada Drive For Sale

      $7,300,000

      330 Arbolada Drive

      330 Arbolada Drive, Arcadia, CA 91006

      • 8 Beds
      • 10 Baths
      • 9,900 Sq.Ft.
    • 8 Rivage For Sale

      $6,680,000

      8 Rivage

      8 Rivage, Newport Coast, CA 92657

      • 6 Beds
      • 6 Baths
      • 4,594 Sq.Ft.
    • 900 W Olympic Boulevard 50A For Sale

      $6,380,000

      900 W Olympic Boulevard 50A

      900 W Olympic Boulevard 50A, Los Angeles, CA 90015

      • 3 Beds
      • 4 Baths
      • 3,510 Sq.Ft.
    • 1486 Wembley Road For Sale

      $5,388,800

      1486 Wembley Road

      1486 Wembley Road, San Marino, CA 91108

      • 4 Beds
      • 5 Baths
      • 4,267 Sq.Ft.
    • 625 E Norman For Sale

      $4,980,000

      625 E Norman

      625 E Norman, Arcadia, CA 91006

      • 7 Beds
      • 8 Baths
      • 6,759 Sq.Ft.
    • 114 Interstellar For Sale

      $4,780,000

      114 Interstellar

      114 Interstellar, Irvine, CA 92618

      • 5 Beds
      • 6 Baths
      • 4,948 Sq.Ft.
    • 9 Rocky Mountain For Sale

      $4,750,000

      9 Rocky Mountain

      9 Rocky Mountain, Coto de Caza, CA 92679

      • 5 Beds
      • 6 Baths
      • 5,854 Sq.Ft.
    • 1837 Stonehouse Road For Sale

      $4,680,000

      1837 Stonehouse Road

      1837 Stonehouse Road, Arcadia, CA 91006

      • 4 Beds
      • 5 Baths
      • 5,741 Sq.Ft.
    • 481 W Live Oak Avenue For Sale

      $4,580,000

      481 W Live Oak Avenue

      481 W Live Oak Avenue, Arcadia, CA 91007

      • 6 Beds
      • 8 Baths
      • 8,108 Sq.Ft.
    • 127 Oakstone For Sale

      $4,580,000

      127 Oakstone

      127 Oakstone, Irvine, CA 92618

      • 4 Beds
      • 5 Baths
      • 3,220 Sq.Ft.
    • 725 Carriage House Drive For Sale

      $4,500,000

      725 Carriage House Drive

      725 Carriage House Drive, Arcadia, CA 91006

      • 6 Beds
      • 7 Baths
      • 5,905 Sq.Ft.
    • 67 Kite For Sale

      $4,500,000

      67 Kite

      67 Kite, Irvine, CA 92618

      • 5 Beds
      • 6 Baths
      • 4,716 Sq.Ft.
    • 46 Shadybend For Sale

      $4,200,000

      46 Shadybend

      46 Shadybend, Irvine, CA 92602

      • 4 Beds
      • 5 Baths
      • 4,200 Sq.Ft.
    • 823 S Bundy Drive 110 For Sale

      $3,999,000

      823 S Bundy Drive 110

      823 S Bundy Drive 110, Los Angeles, CA 90049

      • 4 Beds
      • 5 Baths
      • 3,850 Sq.Ft.
    • 53 Thrasher For Sale

      $3,850,000

      53 Thrasher

      53 Thrasher, Irvine, CA 92618

      • 5 Beds
      • 6 Baths
      • 4,427 Sq.Ft.
    • 16935 Esquira Pl For Sale

      $3,698,000

      16935 Esquira Pl

      16935 Esquira Pl, Encino, CA 91436

      • 5 Beds
      • 5 Baths
      • 3,775 Sq.Ft.
    • 737 N Cherokee Avenue For Sale

      $3,685,000

      737 N Cherokee Avenue

      737 N Cherokee Avenue, Los Angeles, CA 90038

      • 5 Beds
      • 6 Baths
      • 4,116 Sq.Ft.
    • 72 Ray For Sale

      $3,680,000

      72 Ray

      72 Ray, Irvine, CA 92618

      • 4 Beds
      • 6 Baths
      • 4,238 Sq.Ft.
    • 5502 Heritage Oak For Sale

      $3,600,000

      5502 Heritage Oak

      5502 Heritage Oak, Trabuco Canyon, CA 92679

      • 5 Beds
      • 5 Baths
      • 5,200 Sq.Ft.
    • 105 Shear For Sale

      $3,580,000

      105 Shear

      105 Shear, Irvine, CA 92618

      • 5 Beds
      • 8 Baths
      • 4,512 Sq.Ft.
    • 2412 Jupiter For Sale

      $3,290,000

      2412 Jupiter

      2412 Jupiter, Los Angeles, CA 90046

      • 6 Beds
      • 5 Baths
      • 3,591 Sq.Ft.
    • 225 N Lima For Sale

      $3,200,000

      225 N Lima

      225 N Lima, Sierra Madre, CA 91024

      • 10 Beds
      • 11 Baths
      • 10,000 Sq.Ft.
    • 73 Cartwheel For Sale

      $3,120,000

      73 Cartwheel

      73 Cartwheel, Irvine, CA 92618

      • 4 Beds
      • 5 Baths
      • 3,715 Sq.Ft.
    • 2282 Canyonback For Sale

      $3,090,000

      2282 Canyonback

      2282 Canyonback, Los Angeles, CA 90049

      • 4 Beds
      • 5 Baths
      • 4,558 Sq.Ft.
    • 2001 Gardi For Sale

      $3,080,000

      2001 Gardi

      2001 Gardi, Bradbury, CA 91008

      • 6 Beds
      • 2 Baths
      • 2,648 Sq.Ft.
    • 10 Avenue De Azalea For Sale

      $2,890,000

      10 Avenue De Azalea

      10 Avenue De Azalea, Rancho Palos Verdes, CA 90275

      • 4 Beds
      • 4 Baths
      • 4,153 Sq.Ft.
    • 4512 Robinwood For Sale

      $2,886,000

      4512 Robinwood

      4512 Robinwood, Irvine, CA 92604

      • 5 Beds
      • 5 Baths
      • 3,076 Sq.Ft.
    • 90 Rockinghorse For Sale

      $2,850,000

      90 Rockinghorse

      90 Rockinghorse, Irvine, CA 92602

      • 4 Beds
      • 5 Baths
      • 2,937 Sq.Ft.
    • 81 Pelican Lane For Sale

      $2,850,000

      81 Pelican Lane

      81 Pelican Lane, Irvine, CA 92618

      • 4 Beds
      • 5 Baths
      • 3,466 Sq.Ft.
    • 18345 Watson Way For Sale

      $2,806,666

      18345 Watson Way

      18345 Watson Way, Yorba Linda, CA 92886

      • 5 Beds
      • 5 Baths
      • 5,011 Sq.Ft.
    • 22241 Birchleaf For Sale

      $2,780,000

      22241 Birchleaf

      22241 Birchleaf, Mission Viejo, CA 92692

      • 5 Beds
      • 5 Baths
      • 3,520 Sq.Ft.
    • 8 Healdsbury For Sale

      $2,580,000

      8 Healdsbury

      8 Healdsbury, Irvine, CA 92602

      • 4 Beds
      • 3 Baths
      • 3,318 Sq.Ft.
    • 313 Terrapin For Sale

      $2,580,000

      313 Terrapin

      313 Terrapin, Irvine, CA 92618

      • 5 Beds
      • 4 Baths
      • 2,734 Sq.Ft.
    • 162 Winnett For Sale

      $2,498,000

      162 Winnett

      162 Winnett, Irvine, CA 92602

      • 3 Beds
      • 3 Baths
      • 1,921 Sq.Ft.
    View All