Search

Leave a Message

Thank you for your message. We will be in touch with you shortly.

Explore Our Properties

Property Description

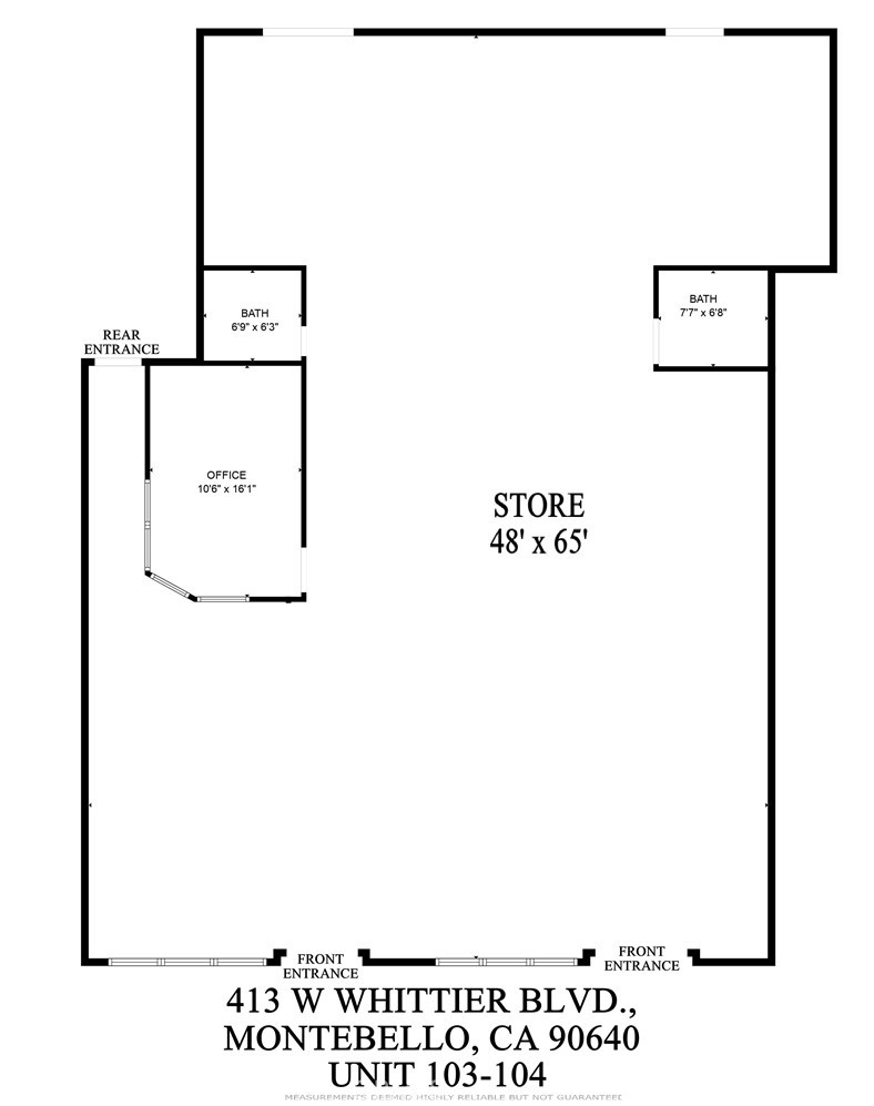
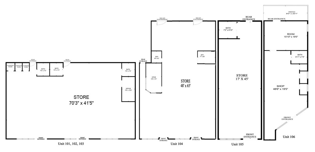
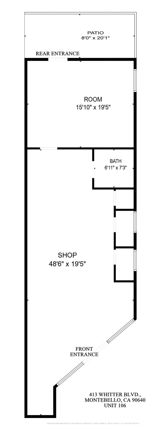
Presenting a rare opportunity to acquire a strategically located, free-standing Retail Shopping Plaza on W Whittier Blvd in Montebello. This prime property offers exceptional visibility on a corner lot, featuring an impressive 158 feet of frontage. The high-clearance, single-level building encompasses approximately 8,252 SqFt and was constructed in 1992. It consists of a total of six units, each equipped with its own bathroom, central HVAC, and rear access from the parking lot. The expansive lot spans 15,526 SqFt and includes 15 parking spaces, along with designated handicap parking. Access to the parking area is conveniently provided via the rear alley. This retail plaza is positioned in a densely populated area at the intersection of Whittier Blvd and Montebello Blvd, which is undergoing rapid development into a vibrant commercial and retail service zone. This property represents an outstanding opportunity for owner/user investment, suitable for a variety of retail and service applications. Nearby anchor tenants include Bank of America, CVS, Montebello Downtown Plaza, BLVD Market, numerous dining options, and various shopping venues.

Overview

Property Status
For Sale
Lot Size
0.36 Acres
MLS ID
AR25104705
Property Type
Commercial
Year Built
1992

Features & Amenities

Total Area
8,252 Sq.Ft.
Neighborhood
Montebello
Stories
1
Water Source
Private
Utilites
Cable Available, Electricity Available, Natural Gas Available, Phone Available, Sewer Available, Water Available
Lot Features
6-10 Units/Acre, Corner Lot
Heat Type
Central
Air Conditioning
Central Air
Sales Price
$2,950,000
Zoning
MNC2

Downloads

413 W Whittier Boulevard

Schedule a Tour

We would love to help you see this beautiful home! As a full-service brokerage, we can help you tour. Please submit an offer, and answer questions about the buying process.

Enter a valid email

Thank you

for your interest in 413 W Whittier Boulevard, Montebello, CA 90640

back to page
413 W Whittier Boulevard
Navigate
Montebello

Explore Montebello

read more
413 W Whittier Boulevard
explore in 3d

Mortgage Calculator

Estimate your monthly mortgage payment, including the principal and interest, property taxes, and HOA. Adjust the values to generate a more accurate rate.
$0,000 Your Payment 20 15 65
$0,000 Your Payment

Exclusive Listings

Our Properties

  • 22442 Via Pajaro For Sale

    $15,000,000

    22442 Via Pajaro

    22442 Via Pajaro, Coto de Caza, CA 92679

    • 6 Beds
    • 8 Baths
    • 15,000 Sq.Ft.
  • 64 Laurel Drive For Sale

    $8,800,000

    64 Laurel Drive

    64 Laurel Drive, Rancho Palos Verdes, CA 90275

    • 6 Beds
    • 10 Baths
    • 8,313 Sq.Ft.
  • 53 Marguerite Drive For Sale

    $8,750,000

    53 Marguerite Drive

    53 Marguerite Drive, Rancho Palos Verdes, CA 90275

    • 7 Beds
    • 9 Baths
    • 8,055 Sq.Ft.
  • 81 Hacienda For Sale

    $8,670,000

    81 Hacienda

    81 Hacienda, Arcadia, CA 91006

    • 6 Beds
    • 8 Baths
    • 7,886 Sq.Ft.
  • 330 Arbolada Drive For Sale

    $7,990,000

    330 Arbolada Drive

    330 Arbolada Drive, Arcadia, CA 91006

    • 8 Beds
    • 10 Baths
    • 9,900 Sq.Ft.
  • 3355 Alta Laguna Boulevard For Sale

    $6,800,000

    3355 Alta Laguna Boulevard

    3355 Alta Laguna Boulevard, Laguna Beach, CA 92651

    • 5 Beds
    • 6 Baths
    • 4,700 Sq.Ft.
  • 100 Bellatrix For Sale

    $5,800,000

    100 Bellatrix

    100 Bellatrix, Irvine, CA 92618

    • 5 Beds
    • 6 Baths
    • 5,140 Sq.Ft.
  • 4 Summer House Lane For Sale

    $5,300,000

    4 Summer House Lane

    4 Summer House Lane, Newport Beach, CA 92660

    • 4 Beds
    • 3 Baths
    • 3,316 Sq.Ft.
  • 1327 S 2nd Avenue For Sale

    $5,280,000

    1327 S 2nd Avenue

    1327 S 2nd Avenue, Arcadia, CA 91006

    • 6 Beds
    • 7 Baths
    • 8,667 Sq.Ft.
  • 1416 Wilson Avenue For Sale

    $5,198,000

    1416 Wilson Avenue

    1416 Wilson Avenue, San Marino, CA 91108

    • 5 Beds
    • 5 Baths
    • 5,209 Sq.Ft.
  • 823 S Bundy Drive 110 For Sale

    $4,999,900

    823 S Bundy Drive 110

    823 S Bundy Drive 110, Los Angeles, CA 90049

    • 4 Beds
    • 5 Baths
    • 3,850 Sq.Ft.
  • 61 Dorado For Sale

    $4,998,000

    61 Dorado

    61 Dorado, Irvine, CA 92618

    • 4 Beds
    • 6 Baths
    • 5,046 Sq.Ft.
  • 127 Oakstone For Sale

    $4,580,000

    127 Oakstone

    127 Oakstone, Irvine, CA 92618

    • 4 Beds
    • 5 Baths
    • 3,220 Sq.Ft.
  • 53 Thrasher For Sale

    $4,080,000

    53 Thrasher

    53 Thrasher, Irvine, CA 92618

    • 5 Beds
    • 6 Baths
    • 4,427 Sq.Ft.
  • 312 E Camino Real Avenue For Sale

    $3,800,000

    312 E Camino Real Avenue

    312 E Camino Real Avenue, Arcadia, CA 91006

    • 5 Beds
    • 7 Baths
    • 6,062 Sq.Ft.
  • 202 W Lemon Avenue For Sale

    $3,788,000

    202 W Lemon Avenue

    202 W Lemon Avenue, Arcadia, CA 91007

    • 7 Beds
    • 7 Baths
    • 5,796 Sq.Ft.
  • 737 N Cherokee Avenue For Sale

    $3,685,000

    737 N Cherokee Avenue

    737 N Cherokee Avenue, Los Angeles, CA 90038

    • 5 Beds
    • 6 Baths
    • 4,116 Sq.Ft.
  • 27170 Big Horn Mountain Way For Sale

    $3,498,800

    27170 Big Horn Mountain Way

    27170 Big Horn Mountain Way, Yorba Linda, CA 92887

    • 5 Beds
    • 5 Baths
    • 4,625 Sq.Ft.
  • 76 Bolide For Sale

    $3,450,000

    76 Bolide

    76 Bolide, Irvine, CA 92618

    • 4 Beds
    • 5 Baths
    • 3,715 Sq.Ft.
  • 59 Longchamp For Sale

    $3,380,000

    59 Longchamp

    59 Longchamp, Irvine, CA 92602

    • 4 Beds
    • 4 Baths
    • 3,267 Sq.Ft.
  • 1701 Virginia Road For Sale

    $3,300,000

    1701 Virginia Road

    1701 Virginia Road, San Marino, CA 91108

    • 5 Beds
    • 4 Baths
    • 2,743 Sq.Ft.
  • 2653 Cordelia Road For Sale

    $3,295,000

    2653 Cordelia Road

    2653 Cordelia Road, Los Angeles, CA 90049

    • 4 Beds
    • 3 Baths
    • 2,851 Sq.Ft.
  • 2677 Wagon Train Lane For Sale

    $3,200,000

    2677 Wagon Train Lane

    2677 Wagon Train Lane, Diamond Bar, CA 91765

    • 6 Beds
    • 10 Baths
    • 6,013 Sq.Ft.
  • 126 Paxton For Sale

    $3,120,000

    126 Paxton

    126 Paxton, Irvine, CA 92620

    • 5 Beds
    • 5 Baths
    • 3,548 Sq.Ft.
  • 3277 Barhite Street For Sale

    $3,080,000

    3277 Barhite Street

    3277 Barhite Street, Pasadena, CA 91107

    • 4 Beds
    • 4 Baths
    • 4,311 Sq.Ft.
  • 70 Weston For Sale

    $2,980,000

    70 Weston

    70 Weston, Irvine, CA 92620

    • 4 Beds
    • 4 Baths
    • 3,084 Sq.Ft.
  • 101 Tinker For Sale

    $2,895,000

    101 Tinker

    101 Tinker, Irvine, CA 92618

    • 5 Beds
    • 6 Baths
    • 3,250 Sq.Ft.
  • 4 San Pietro For Sale

    $2,890,000

    4 San Pietro

    4 San Pietro, Newport Coast, CA 92657

    • 4 Beds
    • 4 Baths
    • 2,400 Sq.Ft.
  • 19 Easthill For Sale

    $2,890,000

    19 Easthill

    19 Easthill, Coto de Caza, CA 92679

    • 5 Beds
    • 5 Baths
    • 3,708 Sq.Ft.
  • 51 Thoroughbred For Sale

    $2,750,000

    51 Thoroughbred

    51 Thoroughbred, Irvine, CA 92602

    • 4 Beds
    • 3 Baths
    • 2,709 Sq.Ft.
  • 306 Treble For Sale

    $2,680,000

    306 Treble

    306 Treble, Irvine, CA 92618

    • 4 Beds
    • 4 Baths
    • 2,955 Sq.Ft.
  • 20455 Somma Drive For Sale

    $2,680,000

    20455 Somma Drive

    20455 Somma Drive, Perris, CA 92570

    • 10 Beds
    • 8 Baths
    • 10,238 Sq.Ft.
  • 900 Euclid Ave For Sale

    $2,600,000

    900 Euclid Ave

    900 Euclid Ave, San Gabriel, CA 91776

    • 4 Beds
    • 5 Baths
    • 2,949 Sq.Ft.
  • 5 Via Taliana For Sale

    $2,588,000

    5 Via Taliana

    5 Via Taliana, Rancho Santa Margarita, CA 92688

    • 5 Beds
    • 3 Baths
    • 3,418 Sq.Ft.
  • 21620 Brisbane Way For Sale

    $2,580,000

    21620 Brisbane Way

    21620 Brisbane Way, Yorba Linda, CA 92887

    • 5 Beds
    • 4 Baths
    • 3,759 Sq.Ft.
  • 242 W Jackson Street For Sale

    $2,560,000

    242 W Jackson Street

    242 W Jackson Street, Rialto, CA 92376

    • 9,800 Sq.Ft.
  • 149 Great Park Blvd For Sale

    $2,480,000

    149 Great Park Blvd

    149 Great Park Blvd, Irvine, CA 92618

    • 4 Beds
    • 3 Baths
    • 2,450 Sq.Ft.
  • 1420 Linda Way For Sale

    $2,450,000

    1420 Linda Way

    1420 Linda Way, Arcadia, CA 91006

    • 5 Beds
    • 3 Baths
    • 3,057 Sq.Ft.
  • 2380 Scenic Ridge Dr For Sale

    $2,399,000

    2380 Scenic Ridge Dr

    2380 Scenic Ridge Dr, Chino Hills, CA 91709

    • 5 Beds
    • 5 Baths
    • 3,050 Sq.Ft.
  • 2536 Cotner Ave For Sale

    $2,390,000

    2536 Cotner Ave

    2536 Cotner Ave, Los Angeles, CA 90064

    • 4 Beds
    • 5 Baths
    • 2,319 Sq.Ft.
  • 185 W Palm Drive For Sale

    $2,350,000

    185 W Palm Drive

    185 W Palm Drive, Arcadia, CA 91007

    • 4 Beds
    • 5 Baths
    • 3,105 Sq.Ft.
  • 700 Alabama Street For Sale

    $2,298,000

    700 Alabama Street

    700 Alabama Street, San Gabriel, CA 91775

    • 5 Beds
    • 4 Baths
    • 2,825 Sq.Ft.
  • 112 Turning Post For Sale

    $2,200,000

    112 Turning Post

    112 Turning Post, Irvine, CA 92620

    • 4 Beds
    • 3 Baths
    • 2,486 Sq.Ft.
  • 228 N Orange For Sale

    $2,200,000

    228 N Orange

    228 N Orange, Rialto, CA 92376

    • 6,240 Sq.Ft.
  • 220 Lexford For Sale

    $2,100,000

    220 Lexford

    220 Lexford, Irvine, CA 92618

    • 5 Beds
    • 4 Baths
    • 3,281 Sq.Ft.
  • 451 Avenida Esplendor For Sale

    $2,100,000

    451 Avenida Esplendor

    451 Avenida Esplendor, Walnut, CA 91789

    • 6 Beds
    • 7 Baths
    • 3,650 Sq.Ft.
  • 201 las tunas Drive For Sale

    $2,098,000

    201 las tunas Drive

    201 las tunas Drive, Arcadia, CA 91007

    • 5 Beds
    • 6 Baths
    • 3,718 Sq.Ft.
  • 121 Tall Reed For Sale

    $2,080,000

    121 Tall Reed

    121 Tall Reed, Irvine, CA 92618

    • 4 Beds
    • 4 Baths
    • 2,455 Sq.Ft.
  • 1025 S 2nd Avenue For Sale

    $1,999,999

    1025 S 2nd Avenue

    1025 S 2nd Avenue, Arcadia, CA 91006

    • 5 Beds
    • 3 Baths
    • 1,527 Sq.Ft.
  • 241 Abacus For Sale

    $1,999,900

    241 Abacus

    241 Abacus, Irvine, CA 92618

    • 3 Beds
    • 3 Baths
    • 2,265 Sq.Ft.
View All